Develop or just sit back and watch the sunset

Nestled in a serene corner of Sanctuary Point, this delightful abode presents a splendid opportunity for first-time buyers, savvy investors, holiday enthusiasts, and small-scale developers. Boasting a generous land size of 714 square metres, this cleared, large corner block enjoys tranquil water views, adding a touch of natural beauty to your everyday living.

 

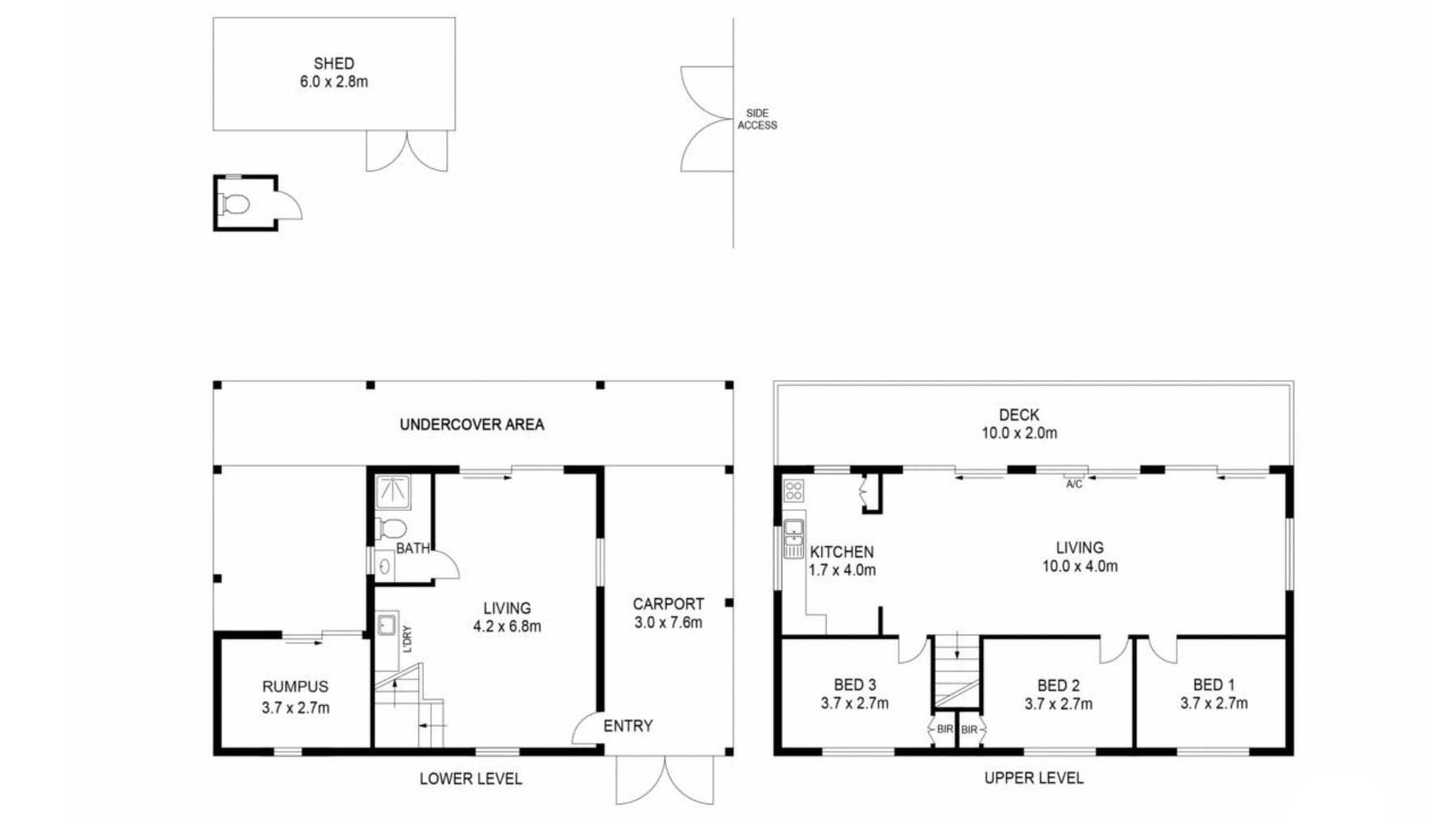
The property features a three-bedroom house, each room offering ample space for comfort and rest. The residence is thoughtfully laid out with an open-plan living, dining, and kitchen area upstairs, where families can gather and create lasting memories. The kitchen is equipped with plenty of storage and gas cooking, complemented by scenic views of the basin, making meal preparations a delightful experience.

 

A front deck offers a fantastic vantage point to soak in the water views, while the fully fenced, huge backyard provides a safe haven for children to play and families to entertain. The house includes a convenient carport and additional space downstairs featuring a rumpus room and bathroom plus extra storage room.

 

Importantly, the R2 zoning opens up endless possibilities; it's an ideal parcel to build a secondary dwelling with dual street access or to explore its potential as an excellent duplex site. The location is just minutes on foot to the water's edge and a short drive from the pristine white sand beaches of Hyams or the delightful eateries of Huskisson.

 

This property is a canvas ready for your vision, whether as a permanent residence, a holiday retreat, or a development project. Seize the opportunity to make this gem your own and enjoy the lifestyle you've always dreamed of.

 

3 1 1 714 m2
Address 68 Ethel St, Sanctuary Point
Price $725,000 - $775,000
Property Type Residential
Property ID 331
Category House
Land Area 714 m2

Inspections

  Saturday 6 December 11:20 AM - 11:40 AM

Agent Details

Jordan Case photo

Jordan Case

0431 628 324
View Profile
Michael Parmenter photo

Michael Parmenter

0412 877 985
View Profile