You're own Private oasis just 5 minutes to Huskisson main street, welcome to the Sunnyside of life!

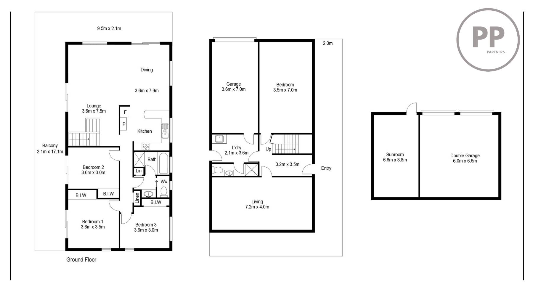
Discover a hidden gem nestled along the serene banks of Currambene Creek, presenting an idyllic lifestyle for families, investors, holiday makers, and retirees alike. This charming four-bedroom, two-bathroom house offers a unique blend of comfort, space, and natural beauty, positioned within close proximity to the bustling Huskisson centre and local attractions.

 

Boasting a generous 683 square metre plot, this home is an oasis of calm, enveloped by the lush tapestry of native bushland. The lower level invites relaxation and entertainment with its spacious living area complete with a bar, large bedroom, and a well-equipped laundry that provides internal access to a sizeable garage, and this space also includes a convenient shower and toilet.

 

Ascend to the upper level and find yourself in an open-plan haven, where the updated kitchen takes centre stage with its gas appliances, vast bench space, and island bench, complemented by a dishwasher for effortless clean-ups. The living space is warmed by a cozy gas log fireplace and a split-system air conditioner ensures year-round comfort.

 

Sleeping quarters on this level are a testament to thoughtful design, with three well-proportioned bedrooms, all featuring built-in robes and ceiling fans. Two of the bedrooms offer the luxury of stepping out onto the expansive deck, providing sweeping views of the enveloping greenery.

 

Outdoors, the landscaped gardens with a tranquil waterfall and pond, create a private paradise, further enhanced by an outdoor/indoor entertaining room with a fireplace and bifold doors that extend the living space into the picturesque surroundings. 

You can just see where the next family Christmas will be held.

Additionally, the property includes a secure extra parking, complemented by electric gates for maximum security and privacy.

 

This abode offers not just a home but an experience. Indulge in nature with direct access to a pristine reserve and creek, perfect for paddleboard and kayak adventures during high tide. Here, a lifestyle of tranquillity and exploration awaits.

Can’t wait to see you there!

 

4 2 3 683 m2
Address 16 Sunnyside Ave, Woollamia
Price $1,220,000 - $1,290,000
Property Type Residential
Property ID 300
Category House
Land Area 683 m2

Inspections

  Saturday 18 October 9:40 AM - 10:00 AM

Agent Details

Jordan Case photo

Jordan Case

0431 628 324
View Profile
Michael Parmenter photo

Michael Parmenter

0412 877 985
View Profile